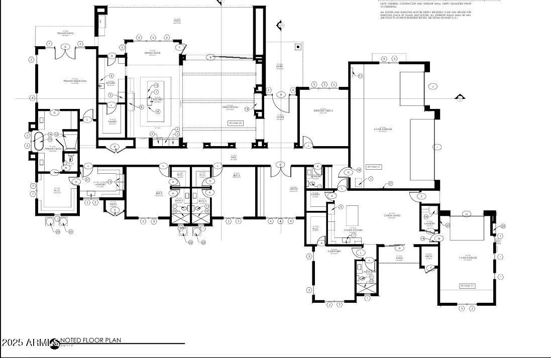
WOW! Under Contruction. Framing Complete! Rough Ins stage. Estimated early summer 2026 completion. Check out this 5045sf custom home in Petroglyph Estates in Superstition Mountain Golf and Country Club. Warm, organic modern feel with high end finishes throughout. Super functional floor plan including four bedrooms, office, and flex room. attached guest suite with its own entrance, it's own private yard area, full kitchen, bedroom, walk in closet, and laundry room. Wonderful kitchen with huge island with waterfall counters, Thermador appliances and wine fridge, & extensive butlers pantry. Primary suite is a retreat in itself. Magnificant views from Primary suite/patio, dining, living/great room and flex room. See pictures that include floorplan, design board selections, & renderings! N At ALAIR, our mission is to bring your vision to life by giving you full transparency to your project's timeline, budget, and selections. Our client control methodology empowers you with 24/7 visibility into your project, while your dedicated team of experts works to ensure you have peace of mind throughout the build. Build trust. Build great relationships. Build a beautiful home!
Listing agent is related to seller. Listing agent is builder. Final price will be determined once all selections are complete. Price is based on allowances on finish selections. Client has ability to customise finish selections.



Mortgage Calculator
Monthly Payment (Est.)
$12,752yesterday Listing updated with changes from the MLS® yesterday Listing first seen on site
All information should be verified by the recipient and none is guaranteed as accurate by ARMLS. Copyright 2025 Arizona Regional Multiple Listing Service, Inc. All rights reserved.
Last checked: 2025-12-26 09:26 AM UTC

Did you know? You can invite friends and family to your search. They can join your search, rate and discuss listings with you.